THE LUCY - Las Vegas, Nevada
(Project Status: Completed)
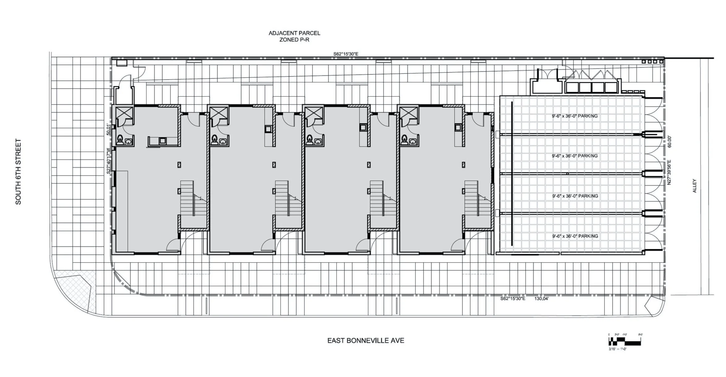
The Lucy is a first-of-its-kind creative community in Downtown Las Vegas. Designed to join modern urban living with spaces to congregate, create and communicate, The Lucy features a three-story complex of 12 condominiums housed atop the newly reimagined and relocated bookstore The Writer's Block. Project partners on The Lucy include owners, The Rogers Foundation, developers Rob Peccole, Tom Schoeman and Chris Gonya in tandem with architect Tom Schoeman AIA, Jawa Studio and contractor The Korte Company.
 
          
        
       
             
             
             
             
             
             
             
            